
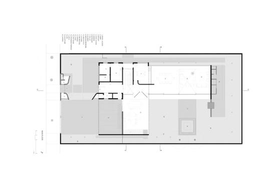
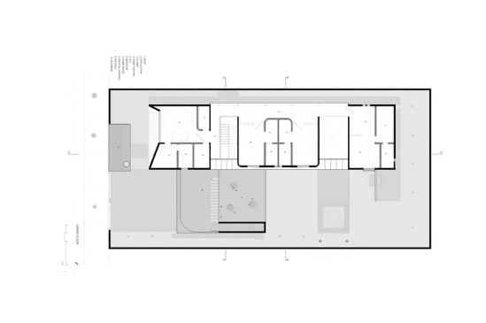
A apropriação dos 800 metros quadrados disponíveis para a implantação da casa (20x40m) acontece de maneira bastante direta. Duas grandes volumetrias perpendiculares entre si demarcam o território e categorizam os usos e funções das demais áreas do terreno. Um prisma retangular perpendicular ao alinhamento da rua abriga as funções íntimas da casa no pavimento superior, ocupando apenas metade do terreno e liberando a outra metade para lazer e paisagismo.
Servindo de apoio estrutural e concentrado apenas no pavimento térreo, outro prisma retangular, mas de distintas proporções, abriga as funções de serviço e sociais da casa. O volume superior parece pousar sobre o pavimento térreo, o que gera uma série de balanços e desencontros que reforçam o partido arquitetônico. A circulação vertical é o único ponto de toque entre eles.
As vigas metálicas de borda do volume térreo paralelo à rua reforçam a ideia de independência volumétrica entre térreo e superior revelando ao observador o real funcionamento estrutural da casa. A residência dispõe de uma estrutura mista formada por pilares e vigas de perfis metálicos em ?I? e lajes maciças de concreto com 20 cm de espessura.
A plataforma de acesso principal, situada sob o balanço frontal no térreo, proporciona acesso ao corredor de 1,80 m de largura que atravessa a planta longitudinalmente, conectando vários ambientes. Após passarmos pela zona de serviço, chegamos ao ponto de acesso às duas principais áreas sócias da casa: as salas e área de churrasqueira. Poderíamos considerá-las como áreas, apesar de delimitadas, difusas já que possibilitam uma série de usos diferentes.
O mesmo tipo de circulação é reproduzido no pavimento superior, onde a monotonia espacial é quebrada pelos vãos de pé-direito duplo (escada e sala da estar) e pilares isolados. Um terraço-jardim configura a cobertura do bloco transversal que abriga a área de churrasqueira e garagem. Pode ser acessado através da escada junto a área de churrasqueira, um espaço de múltiplas funções.
Os valores agregados aos materiais aplicados em tal residência como o cromatismo, textura e transparência foram minuciosamente escolhidos em virtude das intenções buscadas em cada espaço. Ao passo que a transparência integra, o concreto se abstém. As paredes estruturais em concreto dividem os espaços, ao passo que as grandes portas deslizantes de vidro trazem a paisagem para o interior da casa. Os materiais são sinceros. O concreto, vidro, madeira e aço se mostram em sua essência, sem intermediários.
Arquiteto: Flavio Castro
Localização: Planalto Paulista, São Paulo, Brasil
Equipe de Projeto: Jennifer Andrade, Claudia Reis
Área: 800.0 m²
Fotografias: Nelson Kon
Engenharia Estrutural: Edatec
Supervisão da Construção: FCStudio
Instalações: Edatec
Paisagismo: FCStudio
Aço Cortén: Coppermax











